Glasschiebetürbeschlag dormakaba Muto Telescopic 80
Das Glastürschiebetürsystem für große Durchgänge: dormakaba Muto Telescopic 80

Universelle Flügelmaterialien und Montagearten
Das Glasschiebetürsystem Muto Telescopic 80 ist erhältlich zur Wandmontage, Deckenmontage, Deckenmontage mit Seitenteil (Montage in Mauerdurchgang) sowie Deckenmontage mit Seitenteil (Montage an Glas-Oberlicht) und ist verwendbar für Glasflügel und Holzflügel bis 50 mm Dicke (mit Adapterprofil). Es gibt jeweils eine 2flgl. Und eine 4flgl. Variante.
Keine Glasbearbeitung: Schnell-Läufer und Langsam-Läufer werden geklemmt
Das Schiebetürsystem verfügt über eine Synchronauslegung, d. h. gleichzeitige Bewegung von Flügel 1 (Schnell-Läufer SL) und Flügel 2 (Langsam-Läufer LL <= halbe Geschwindigkeit von Flügel 1).
Vielfältige Gestaltungsmöglichkeiten
Optional kann das Muto Telescopic 80 mit Dormotion – Funktionalität (Nachrüstbar in bestehenden Anlagen ohne Demontage) sowie integrierter Verriegelung (nur in Verbindungmit Dormotion, Batterie betrieben, kein Sicherheitsverschluss, keine Außenanlagen) sowie Status-Indikator (Nur in Verbindung mit Dormotion, Kabelzugang wird benötigt, keine Außenanlagen) ausgestattet werden. Wir empfehlen Dormotion nur in Verbindung mit einer Griffstange
Verschiedene Varianten der Bodenführungen: Mitfahrende Oberflurbodenführung (Montage an Langsam-Läufer /Glasbohrungen notwendig) oder mit Unterflurbodenführungsprofil.
VSG-Verwendbarkeit durch „Clamp & Glue Technology“
Die dormakaba Clamp&Glue Technologie bietet die Möglichkeit, die Vorteile von Verbundsicherheitsglas zu vereinen und zugleich seine negativen Eigenschaften zu beseitigen. Die Lösung für sicheren Halt des Glasflügels benötigt nur ein Minimum an Klemmkraft (K) – und das Ganze ohne Glasbearbeitung.
Einfaches Umrüsten der Laufwagen mit VSG-Zubehör-Set möglich. Ohne negative Eigenschaften bei VSG: Keine Blasenbildung, kein Herausdrücken von Folien, kein Glasbruch aufgrund zu hoher Klemmkräfte und kein negativer Einfluss von Temperaturveränderungen (Folie schwindet).
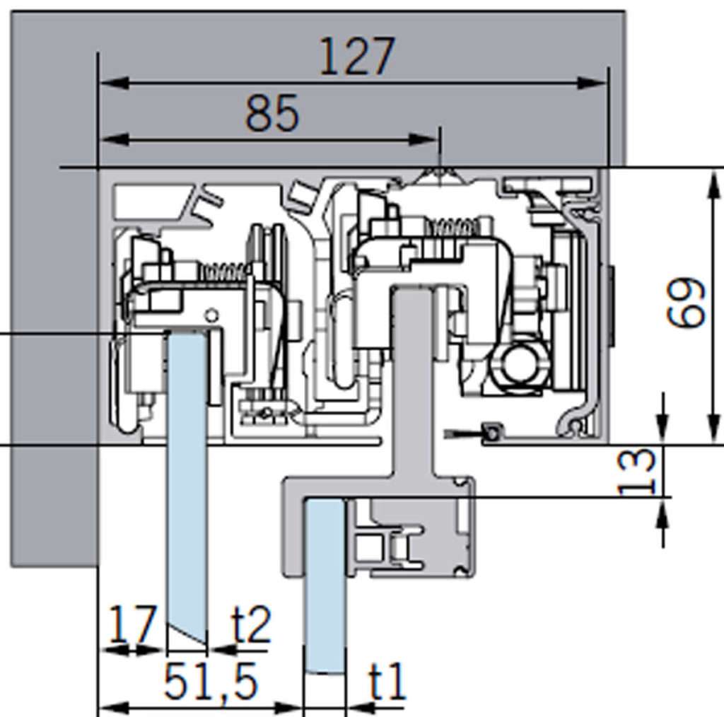
Technische Daten
Die Tragkraft beträgt max. 2 x 80 Kg bzw. 4 x 80 Kg je Flügel, die möglichen Glasdicken sind von 8 -13,5 mm. Mögliche Glasarten: ESG, VSG (aus 2 x ESG), Glasdicke 8–13,5 mm, max. Türflügelgewicht 80 kg (je Flügel), Anwendungen: 1-/2-flügelig, Glas-Seitenteil, Ganzglas-Anlage, Material: Aluminium, Oberflächen Eloxal- und RAL-Farbtöne, Montageart: Wand-, Deckenmontage, Montage an Glas, Getestet nach DIN EN 1527, Nachjustierbarkeit ohne Demontage +5 mm / -3mm, Getestet auf 100.000 Bewegungszyklen.
Profilabmessung 127 x 69 mm, max. Schiebeflügelhöhe 3000 mm, lichte Mauerweite min. / max. 1110 / 3886 mm, Flügelbreiten min. / max. ohne Dormotion 600 / 1200 mm (2flgl.) bzw. 600 / 1000 mm (3flgl.). Mit Dormotion 790 / 1200 mm (2flgl.).
Lieferumfang je Set
Profilset Telescopic, Klemm-Laufwagen (für 8–13,5 mm Glasdicke) mit Aushebeschutz, Endanschläge inkl. Fangvorrichtung, Telescopic-Seilsystem, Oberflurbodenführung, Bodenführung, Stirnabdeckungen inkl. Sichtschutzbürsten.
| Modell / max. Flügelbreite bis | Preis 1-flügelig | Modell / max. Flügelbreite bis | Preis 1-flügelig |
|---|---|---|---|
| Muto Telescopic 80, Set 2flgl. zur Wand- oder Deckenmontage für max. 1000 mm Flügelbreite, Oberfläche LM EV1 silberfarbig oder LM weiß | 1.508,00 € | Muto Telescopic 80, Set 2flgl. zur Wand- oder Deckenmontage für max. 1000 mm Flügelbreite, Oberfläche LM Dark Niro | 1.599,00 € |
| Muto Telescopic 80, Set 4flgl. zur Wand- oder Deckenmontage für max. 1000 mm Flügelbreite, Oberfläche LM EV1 silberfarbig oder LM weiß | 2.997,00 € | Muto Telescopic 80, Set 4flgl. zur Wand- oder Deckenmontage für max. 1000 mm Flügelbreite, Oberfläche LM Dark Niro | 3.197,00 € |
| Muto Telescopic 80, Set 2flgl. mit Seitenteil zur Deckenmontage für max. 1000 mm Flügelbreite, Oberfläche LM EV1 silberfarbig oder LM weiß | 1.733,00 € | Muto Telescopic 80, Set 2flgl. mit Seitenteil zur Deckenmontage für max. 1000 mm Flügelbreite, Oberfläche LM Dark Niro | 1.852,00 € |
| Muto Telescopic 80, Set 4flgl. mit Seitenteil zur Deckenmontage für max. 1000 mm Flügelbreite, Oberfläche LM EV1 silberfarbig oder LM weiß | 3.466,00 € | Muto Telescopic 80, Set 4flgl. mit Seitenteil zur Deckenmontage für max. 1000 mm Flügelbreite, Oberfläche LM Dark Niro | 3.697,00 € |
| Muto Telescopic 80, Set 2flgl. zur Montage an Glasseitenteil und Glasoberlicht für max. 1000 mm Flügelbreite, Oberfläche LM EV1 silberfarbig oder LM weiß | 1.749,00 € | Muto Telescopic 80, Set 2flgl. zur Montage an Glasseitenteil und Glasoberlicht für max. 1000 mm Flügelbreite, Oberfläche LM Dark Niro | 1.863,00 € |
| Muto Telescopic 80, Set 4flgl. zur Montage an Glasseitenteil und Glasoberlicht für max. 1000 mm Flügelbreite, Oberfläche LM EV1 silberfarbig oder LM weiß | 3.499,00 € | Muto Telescopic 80, Set 4flgl. zur Montage an Glasseitenteil und Glasoberlicht für max. 1000 mm Flügelbreite, Oberfläche LM Dark Niro (157) | 3.725,00 € |
| Mehrpreis für Dormotion-Einheit für max. 80 kg, inkl. Starter, 2flgl. | 203,00 € | Mehrpreis für Dormotion-Einheit für max. 80 kg, inkl. Starter, 4flgl. | 406,00 € |
| ntegrierte Verriegelung für Muto bestehend aus einer Empfängereinheit, 1 Aufnahme Verriegelung, 1 Verriegelung und 1 Rahmensystem L / XL | 417,00 € | Funkfernbedienung für integrierte Verriegelung Muto | 105,00 € |
| Wandtaster mit Funksender für integrierte Verriegelung Muto | 77,00 € | Statusindikator-Set für Muto bestehend aus 1 Sensor, 1 Empfänger und 1 Kabel | 345,00 € |
| Kabel-Set für Nutzung des Statusindikators in der Verriegelungseinheit | 53,00 € | VSG-Sets, Kleber, Düsen, Automix-Pistole und Adapter für VSG | a. Anfrage |
Zu den angegebenen Preisen für das Glasschiebesystem kommen noch die Preise für die gewünschte Glastüre.
Es ist der Preis für Sondermaß/Sonderbohrung bzw. bei der Serie P der Schiebetürpreis je Flügel zu rechnen,
sowie die gewünschten Muschel- oder Stoßgriffe. Die Preise verstehen sich incl. Mehrwertsteuer, zuzüglich
der Versandkosten. Andere Größen und Varianten auf Anfrage.







Universelle Flügelmaterialien und Montagearten
